U8国际官网 U8guojiguanwang 分类>>
U8国际- U8国际官方网站- APP下载尚湾林语(售楼处) 首页 销售中心 环境户型价格地址楼盘详情配套电话交房时间环境户型价格地址-2026413
U8国际,u8国际官方网站,u8国际网站,u8国际网址,u8国际链接,U8国际APP下载1. 预约要求:项目实行实名预约制,需提前1-3天致电登记,不接受临时到访
2. 专属权益:预约客户享一对一顾问服务、免费专车看房、开发商专属优惠、优先锁房
3. 到访提示:看房请携带身份证件,本售楼处仅服务终端购房客户,中介勿扰
认准官方热线,警惕“茶水费、代办、虚假优惠”等违规行为,所有购房信息以开发商官方口径为准,谨防诈骗。
以城市发展为序,以人居理想为核,在时代热土之上,打造匹配城市精英的品质人居,让每一份对家的向往,都能落地生根
买房最大的风险,往往不是贵,而是在「再等等」的犹豫中,永远错过最佳时机。
而现在,一个历史性的置业机遇,就摆在闵行。随着地王频出,梅陇售价破“8”,闵行中部筑底价800万级。
而紫竹地块更以约19%高溢价率成交,低容积率属性决定未来售价或达7万+/㎡,闵行南部门槛直线跃升。闵行置业门槛形成中部800万级,南部坐稳650万级的格局。
毕竟目前闵行区新房均价基本都在6-8万/㎡,随便一个盘差不多总价都要600万起步!
若评选这几年置业更火热的区域,闵行一定榜上有名,开盘触发积分的概率达到90%+,遥遥领先其它板块。
这背后,一方面是闵行超强产业、财政实力,以及有目共睹的规划兑现力的印证。另一方面则是多年来优质产业所积淀下的强劲购买力。
正如一个时代会有标杆、一个城市会有地标,每一个社区,亦有臻藏之作,以众星拱月之势超越生活想象。
尚湾林语售楼处官方电话☎️:(欢迎致电)尚湾林语营销中心电话☎️:尚湾林语官方售楼处热线☎️:尚湾林语官方售楼中心电话☎️:尚湾林语售楼处专属咨询热线号。上海地产星侨置业通过协议方式拿下颛桥镇生态间隔带G9颛桥中心村段10-03、19-01、19-05、20-01地块(”城中村“改造项目-中心村),总价55亿2183万元,楼面价29760元/㎡。
尚湾林语作为上海目前较大的城中村改造项目、上海重点城中村综合改造项目、闵行区率先认定的3大市级重点改造项目之一,肩负城市更新使命!
其次,操刀者上海地产集团是上海城市更新的先行者,与上海同频共振发展21年,开发经验丰富!
大家熟知的闵行经济开发区、虹桥经济开发区、黄浦江两岸45公里滨江生活岸线、三林楔形绿地等整片开发、城市更新的区域,都出自上海地产集团之手。
而尚湾林语这一如此重要的项目由上海地产集团旗下全资子公司上海房地(集团)有限公司承建并参与开发。作为上海地产集团的全资二级子公司,上房公司以“聚焦城市更新,筑就美好生活”为使命,致力“成为最具影响力的非特定区域城市更新综合平台公司”。
四幅住宅地块方案设计已完成公示。首期4幅住宅地块将打造成依水而居的住宅场景,形成现代简约的人文社区。
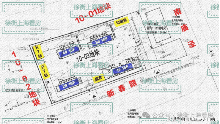
项目东至20-02地块,南至银春路,西至新源路,北至10-01地块,整于银春路的北侧,距离5号线公里左右!
根据大小不同的地块组成,由32幢住宅、18幢社区配套公建及4个地下汽车库组成。合计住宅套数下限约1767套,需配建5%以上的保障性住房,全装修比例50%,要求中小套户型不得低于总住宅建筑面积的80%!
10-03地块:拟建2栋15F高层住宅、2栋16F高层住宅、以及若干配套用房。
19-01地块:拟建7栋16F高层住宅、3栋9F高层住宅、1栋14F高层住宅、1栋10F高住宅以及若干配套用房。
19-05地块:拟建7栋16F高层住宅、3栋9F高层住宅、1栋14F高层住宅、1栋10F高层住宅以及若干配套用房。
20-01地块:拟建6栋16F高层住宅、2栋14F高层住宅、3栋10F高层住宅、1栋9F高层住宅以及若干配套用房。
【尚湾林语】整体为9-14层的滨水小高层,大大提升了得房率。据了解,项目得房率达到了约78.6%-82.2%左右,甚至超过了市面上部分洋房产品。
重要的是,项目摒弃了利润更高的高低配,打造了全小高层社区,就是为了让户户皆有景、视野plus:
③.“亲地性”强,特别是紧邻河畔的滨水平层只有9-10层,可近享花草树木探入窗台的惬意,眼前就是四季变幻,与住叠加的感觉十分相近。
尚湾林语官方售楼处热线☎️:尚湾林语官方售楼中心电话☎️:尚湾林语售楼处专属咨询热线☎️:项目位于闵行大零号湾核心,坐拥上海交大、华东师大两所985大学,还有航天、航空、船舶、核电等领域的10多所科研院所,以及近200家国家级、市级研发机构!
尚湾林语,所在的约180万方大城,以全新形象——尚品新境重磅而来。这座屹立于闵行腹地、乘科创浪潮崛起的大城,融合了都荟、生态、生活多重元素,绽放出无可限量的澎湃力量。
以其丰富多元的城市生态——尚品天地、尚品颛溪、尚湾林语三大功能组团,呈现未来生活的全新视界,致敬城市每一次的崭新想象。
180万方尚品新境,涵盖商业办公、生态景观和住宅三大板块,由金阳路绿荫大道一脉贯穿,打造了尚品天地、尚品颛溪和尚湾林语三大功能区,超越了传统社区和TOD综合体的体验。
基础的“框架”已初步成型,继而填充的“内容”将推动区域腾空而起,更多好消息接踵而至。
在都荟之城——尚品天地,汇聚商办、文体教育等丰富业态,宛如一座繁华的都市生活舞台,满足人们对都市生活的无尽遐想。
在生态之城——尚品颛溪,拥有逾百万方的生态秘境与自然水系,未来将于此提供游憩休闲、自然研习、趣味采摘、有机食养、科普教育等生态体验,仿若一片宁静的自然乐土,让人们于都市喧嚣中觅得心灵的静谧港湾。
在生活之城——尚湾林语,作为由尚品天地、尚品颛溪围绕的尚湾林语,时尚的建筑立面、开阔空间和优选品牌,精心营造出舒适宜人的居住环境,也将共同畅享逾百万方大城的多元生活。
尚品新境将社区红线外的景观也纳入了整体生活空间的打造范畴,在社区外打造了六个口袋公园,其中的知心谷已实景呈现在大家面前。
尚湾林语官方售楼处热线☎️:尚湾林语官方售楼中心电话☎️:尚湾林语售楼处专属咨询热线万方的烟火潮流街区、文体中心、学校、生活住区等这些丰富业态,都将服务于尚湾林语的未来业主!1、约21.5万方开放摩登商办,涵盖开放商街、邻里中心、生态办公、人才公寓等。
购物、美食、娱乐、休闲、读书、运动......全方位的生活方式,在这里就能一键解锁!
2、还有城市都心难寻的约86万方自然秘境,集游憩休闲、自然研习、趣味采摘、有机食养、科普教育等于一体。
项目南侧大片生态用地,不仅可提供游憩休闲功能,还包括自然研习、趣味采摘、有机食养、科普教育等生态体验!
未来不管是带娃体验生态绿色大自然,还是各项文体运动、逛逛商业街,娱乐休闲,家门口都能实现!
3、约15万方未来理想水岸,沿天然水系河道规划滨河绿廊、活力水岸、休闲水岸、风景河岸等。未来,可沿河岸晨跑、慢骑、散步……
4、约3万方活力文体中心,你可以随时和家人、老友、工作伙伴开启一场酣畅淋漓的运动之旅。
光是文体中心就足足有3万多方,不仅规划充满艺术氛围和设计感,在功能上更多元,计划会设置羽毛球、健身房、乒乓球、小剧场、小图书馆、儿童游乐设施等多种场馆!
5、约3.44万高质人文教育,涵盖幼、初、高中。闵行本就是教育强区,项目又紧邻两所985大学,片区内有非常浓厚的教育底蕴。同时依托上海交大,闵行区也一直牵手交大在打造“环交大闵行校区基础教育生态区”,项目近水楼台,未来教育质量很值得期待。
尚湾林语售楼处专属咨询热线☎️:尚湾林语的外立面主要采用了以下材料组合,营造出现代简约的建筑风格:大面积玻璃:用于窗墙系统,增强通透感与采光。
整体设计通过玻璃的通透、铝板的精致与仿石涂料的质感相结合,打造出简洁而富有层次的现代建筑外观。
进入南入户大堂,能感受到具有仪式感的现代轻奢设计,灰色大面铝板搭配金色格栅,每一次入户都能体验到无比尊崇的感觉。内部墙面做了大面积岩板,以及具有设计感的吊顶,更贴心地配备了空调,营造舒适的环境。
进入小区内部,绿化做得也无敌得好,安静、舒适、养眼!一看就是高端品质盘!
入户大堂采用灰色大面铝板搭配金色格栅。电梯厅墙面铺设大面积岩板,吊顶也颇具设计感。电梯轿厢几乎没有在外的部件,皆精心包裹,高颜值、触感温润;还贴心配了空调系统,并是交付标准。
地上地下双精装大堂,更是让业主眼前一亮!明亮的灯光洒满空间,墙面与地面的材质搭配尽显质感,没有丝毫敷衍的痕迹。从踏入大堂的那一刻起,归家的仪式感就油然而生,哪怕是从地下车库入户,也能感受到与地上大堂同等的精致。
据悉,布局有风森会客厅、阳光草坪、林荫步道、能量花园、萌宠乐园,环形慢跑道等多重节点。
这既为高知人群提供了互相认识、交流的平台,N多与景观相处的方式,绿植葱茏遮盖,
项目所有楼栋几乎实现三面甚至四面景观环绕,坐拥揽园望林观水视野,每一栋景观价值都颇高。
根据公开信息,尚湾林语项目确实配备了会所及架空层泛会所配套,具体情况如下:
会所配套项目规划了约3万方的活力文体中心,涵盖运动场馆(如羽毛球馆、乒乓球室)、文教场馆、小剧场、小图书馆等设施,可满足业主运动、娱乐、休闲、亲子等多元需求,相当于一个大型会所功能。
架空层泛会所项目在多个楼栋的一楼架空层打造了功能场景,包括儿童活动区、会客厅等,通过面砖铺装和金属格栅吊顶设计,既提供遮风避雨的户外空间,又具备社交、休闲功能,属于泛会所性质的配套。
52幢一楼的架空层,更打造儿童活动区、会客厅等功能场景,提供了一个能遮风避雨的户外功能场地。架空层运用面砖,并搭配金属格栅吊顶进行打造,使其既高端大气又经久耐用。
通车的金阳路,崭新的城市界面,道路拓宽后,干净、舒适、整洁!未来出行,超便捷!
“三路一河”中的河道也已成形,清澈见底的河水,尺度宽敞!河道两侧绿化种植的都是一排排樱花树,待到樱花开放时,整个小区将是又一番美景!
再加上市政要求,小区外围也建造了10%的绿化率,总体相当于拥有了45%的绿化率!
后续还规划了5个口袋公园,分别是逸心园、赏心园、童心岛、栖心里和沁心道,主要沿着在建的主干道金阳路分布!
该户型设计精巧,独立玄关保障归家仪式感与收纳需求;客餐厅与厨房一体化设计,动线流畅,空间开阔;两卧均配备飘窗,不仅拓展了使用面积,还实现了互不干扰的私密居住体验;干湿分离的卫生间,更是贴合小家庭日常使用需求。
尚湾林语售楼处专属咨询热线㎡三房两厅一卫:正3房的格局,进门玄关处的换鞋凳区域设有采光设计,细节之处尽显匠心。
主卧+次卧的尺度感都非常不错。即使是书房也有不错的空间,未来打造一个儿童房也绰绰有余。
三个卧室均能放置标准尺寸床铺,北向房间在同面积段户型中尤为舒适,可灵活满足家庭结构变化的需求。全屋四飘窗的设计,进一步提升了空间利用率,为生活增添更多可能。
近期看了很多只能放下一张两人餐桌或是吧台的餐厅,以此来达到让客餐厅空间尺度感变大的产品。
相比传统百平米小三房,该户型用相似的建面,做出了改善三房的感觉,绝对是市场教科书户型!
入户进门就是独立的玄关,充裕的收纳空间,可有条不紊地归置鞋履及长外套或各类出行必备物品。通透明亮的客餐厅空间,足够放下六人餐桌,不论是休闲、用餐还是聚会,都能为生活带来更多畅想空间,打造家庭融情生活的主场。全屋配备了日立中央空调与威能地暖系统,在每个客厅、卧室区域都有独立的开关面板,都是业主优雅生活的基础条件。主卧可放置2米的大床,收纳空间足以在后期打造L型衣橱,还有独立卫浴,在全功能、大尺度之上,让居住更具舒适度和品质度。
卧室全飘窗设计,三间房间均可作为卧室使用,无论是老人同住还是两个小孩居住,休息、收纳、学习功能都能满足。
采用西门子厨房三件套——洗碗机(8套)、燃气灶、抽油烟机,将先进科技融入厨房生活。还有弗兰卡大尺寸水槽,前置净水设备,操作台面是仿石材台面,美观大气又易清洁。回形灯带设计,保证整体光线明度并显美观大气。
U型厨房缩短了洗、切、烹的居家动线,可以容纳双开门冰箱,更加匹配时代青年的生活需求,让时光更加便捷从容。
至于卫浴空间,则配置唯宝一体式智能坐便器,龙头和花洒也采用高仪品牌,更配有电热毛巾架,收纳功能超足的镜柜,对生活质感的投入,从头贯穿到尾,以同等标准照顾每位家人的使用舒适度。
是南闵行乃至全市都十分臻稀的四房产品。超大方厅,不管是举行家庭小PARTY还是二胎共同玩耍,都绰绰有余。
当然,这个超大方厅也给你留下一个X空间,可随家庭结构和需求随心个性定制,书房、学习区、游戏区,女王化妆间等皆可。南向双套房,给予家庭成员满满的私密性。其中主卧配置豪华,带衣帽间+浴缸+淋浴+马桶+台盆。另外还有一个次卫,离北向卧室也很近,其实家庭人口不是特别多的情况下可以做成第三个套间。
全屋配备日立中央空调、威能地暖及热水器。厨房采用了市中心高端住宅才配置的唯宝、高仪品牌卫浴;
以及“爱马仕”级别的德国西门子厨具——洗碗机、燃气灶、抽油烟机!全是国内外一线月,七宝中学教育集团与闵行区颛桥镇府合作协议签约仪式圆满完成,引进七宝中学教育集团签订协议。目前已明确入驻18-03、18-05地块,将建设一所幼儿园及初中,规划建筑面积约3.44万方,预计2025年正式开始建设。
更值得关注的是,幼儿园和规划中学,就在尚湾林语三批次的西面。对于尚品新境而言,优势并不仅在于大零号湾可观的前景,地处大零号湾成片开发战略留白用地,位于大零号湾腹地—成果转化区(“T”区)北侧,可以被称为大零号湾的心脏位置。这里将汇聚起的,将是高校老师、产业精英,居住生活于此,也意味着与高知圈层做邻居,让社区价值在社交圈层得以体现。
选择17平方公里,4000+家硬科技成果单位,660家高新技术企业,137家估值亿元以上企业,43家估值超10亿元企业,10家上市企业,70+名院士……剑指世界级科创湾区,大零号湾交出最新成绩单。
作为上海目前唯一以“科技创新策源”定位的功能区,与张江、临港一起,成为全市首批未来产业先导区。
作为上海3大首批未来产业先导区之一,大零号湾将在2035年形成万亿市值的高新技术企业集群!
在尚湾林语,不管你是穿拖鞋下楼,还是茶余饭后骑自行车出门,项目周边的配套可谓全维度便捷与高规格。
【尚湾林语】位于上海主城闵行颛桥板块,紧邻大零号湾腹地,轨交5号线公里咫尺龙湖天街等繁华商业,坐享成熟交通、商业、教育、医疗、生态配套。
【立体交通】5号线号线年开通)、虹梅路高架。莘庄、漕河泾、徐家汇、新天地、人民广场均是生活半径。周边还有15号线号线和嘉闵线。未来有望实现四轨出行!
【繁华商业】本项目规划约21.5万方开放式商办街区,龙湖闵行天街、万达广场、置业广场、上海寰悦广场、紫叶广场在内的五大高能级商业环伺,高端购物中心、亲子教育、各色餐饮、潮流品牌店等等,繁华生活无需远行,吃喝玩乐游购近在咫尺。
教育资源方面:包含约 3.44 万高质人文教育,涵盖幼、初、高中。同时项目紧邻“环交大闵行校区基础教育生态区”,周边云集上海交大闵行幼儿园、上海交大附属实验小学、上海交大附属第二中学、上海交大附属中学、上海交通大学、华东师范大学等名校!
生态资源方面:目前,生态农业用地正在加速兑现中,比如:项目南面将会打造四季花海国际生态示范区,未来每个季节都会种植不同植物供观赏,并将成为上海网红打卡点。据悉,第一阶段打造的醉美向日葵花海等,预计11月开放展览。毫不夸张地说,未来在此享受的是国际一线自然城市生活体验!还有大零号湾图书馆、大零号湾艺术馆、一尺山海美术馆、闵行滨江公园……精彩纷呈的城市级文旅配套。一房一价表
1. 预约要求:项目实行实名预约制,需提前1-3天致电登记,不接受临时到访
2. 专属权益:预约客户享一对一顾问服务、免费专车看房、开发商专属优惠、优先锁房3. 到访提示:看房请携带身份证件,本售楼处仅服务终端购房客户,中介勿扰三、合规购房提示认准官方热线,警惕“茶水费、代办、虚假优惠”等违规行为,所有购房信息以开发商官方口径为准,谨防诈骗。品牌理念以城市发展为序,以人居理想为核,在时代热土之上,打造匹配城市精英的品质人居,让每一份对家的向往,都能落地生根
2026-04-14 09:42:22
浏览次数: 次
返回列表
友情链接:





